top of page
AKKT
Projekty
Info
Close
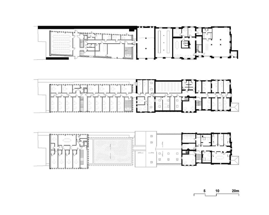
Komenda Wojewódzka PSP w Toruniu
/
Toruń, Polska, 2022
Projekt konkursowy modernizacji i rozbudowy budynku Komendy Wojewódzkiej Państwowej Straży Pożarnej w Toruniu
AKKT
Zamknij
Czytaj więcej
POPRZEDNI
/
NASTĘPNY
bottom of page